Secuencia Fílmica – Secuencia Arquitectónica:
La postura hacia una propuesta espacial dentro de una estructura formal existente, esboza numerosos interrogantes; pasando desde la decisión de permanencia o no de elementos de la composición existente hasta la disyuntiva de la modificación de la propia forma de la obra, todo en armonía con la ideología de espacio propuesto y las restricciones económicas y culturales propias del encargo, pero la variable se torna aun más compleja cuando conviven residuos de diversas intervenciones sobre el objeto en el tiempo.
En cine o teatro, se entiende como secuencia, al conjunto de elementos ordenados que se integran dentro de una línea argumental, estos elementos pueden ser planos o escenas.
En este caso, la propuesta se basa en interceptar una trama espacial a la composición formal existente conservando la estructura de la obra y proponiendo una nueva forma relacionada con el nuevo programa.
La búsqueda consiste en lograr una continuidad espacial de las diferentes escenas de la obra manteniendo una coherencia argumental narrada desde el mismo pensamiento de espacio.
La intervención se nutre de una sucesión de planos combinados entre aquellos elementos históricos del inmueble, conservados por cierta sensibilidad que siempre es digna de merecer, desde el cliente hacia su obra, su persona; la unión de éstos componentes históricos y los nuevos elementos permiten retratar una fusión temporal, en una continuidad de espacios amalgamados por una coherencia visual y compositiva.
El observador vive un espacio preexistente, se encuentra una diferencia entre la percepción de una obra nueva, recorrida desde el intelecto por un método virtual, a través de la imaginación o elementos digitales del plano secuencia, en este caso, el actor o actores de la obra no interactúan de modo real.
En cambio, en una reforma, el propio autor y habitante pueden recorrer el espacio, analizando de manera empírica cada plano, cada secuencia de la obra a intervenir.
El escenario está montado, el director puede coordinar y vincular la estructuración de la forma y elementos hacia esa secuencia infinita del habitar.
Vivienda Vega
Ubicación: Villa del Parque, Ciudad Autónoma de Buenos Aires, Argentina.
Arquitecto: Cristian Hernán Estévez.
Colaboradores: Pablo Luksza, Silvia Karina Estévez, Nora Servidio, Yanina Paola Estévez, Mauricio Carvallo, Cristian Hernández.
Asesor estructural: Ing. Teófilo Imach.
Asesor en instalaciones sanitarias: Norberto Verosto, Ezequiel Arias y Lorena Gallardo.-
Instalaciones eléctricas: Damián Saez.-
Construcción: C.E.A. (Cristian Estévez Arquitecto)
David Ernesto Fernández Dávila, Lucio José Espinal Aguilar, Zarco Pozo Achon, Miguel Ángel , Percy Eduardo Fernández Dávila
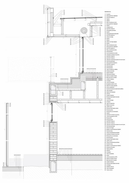
Materialidad: Estructura de muros portantes, vigas de perfiles de acero IPN, cubierta de chapa de acero galvanizado.
Superficie del predio: 248,00m2.
Superficie construida: 235,37m2.
Año de proyecto: 2009.
Año de construcción: 2010/2012.
Fotografías: Matías Andrés Blásquez, Cristian Hernán Estévez.






























