Memoria:
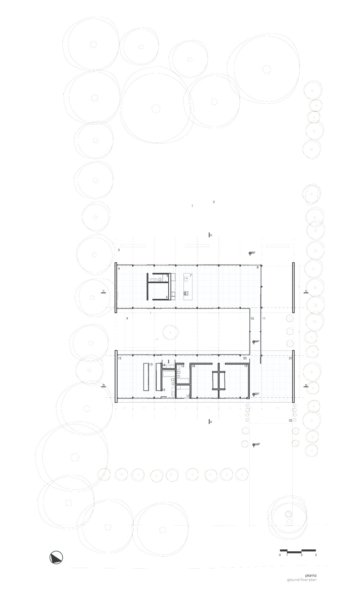
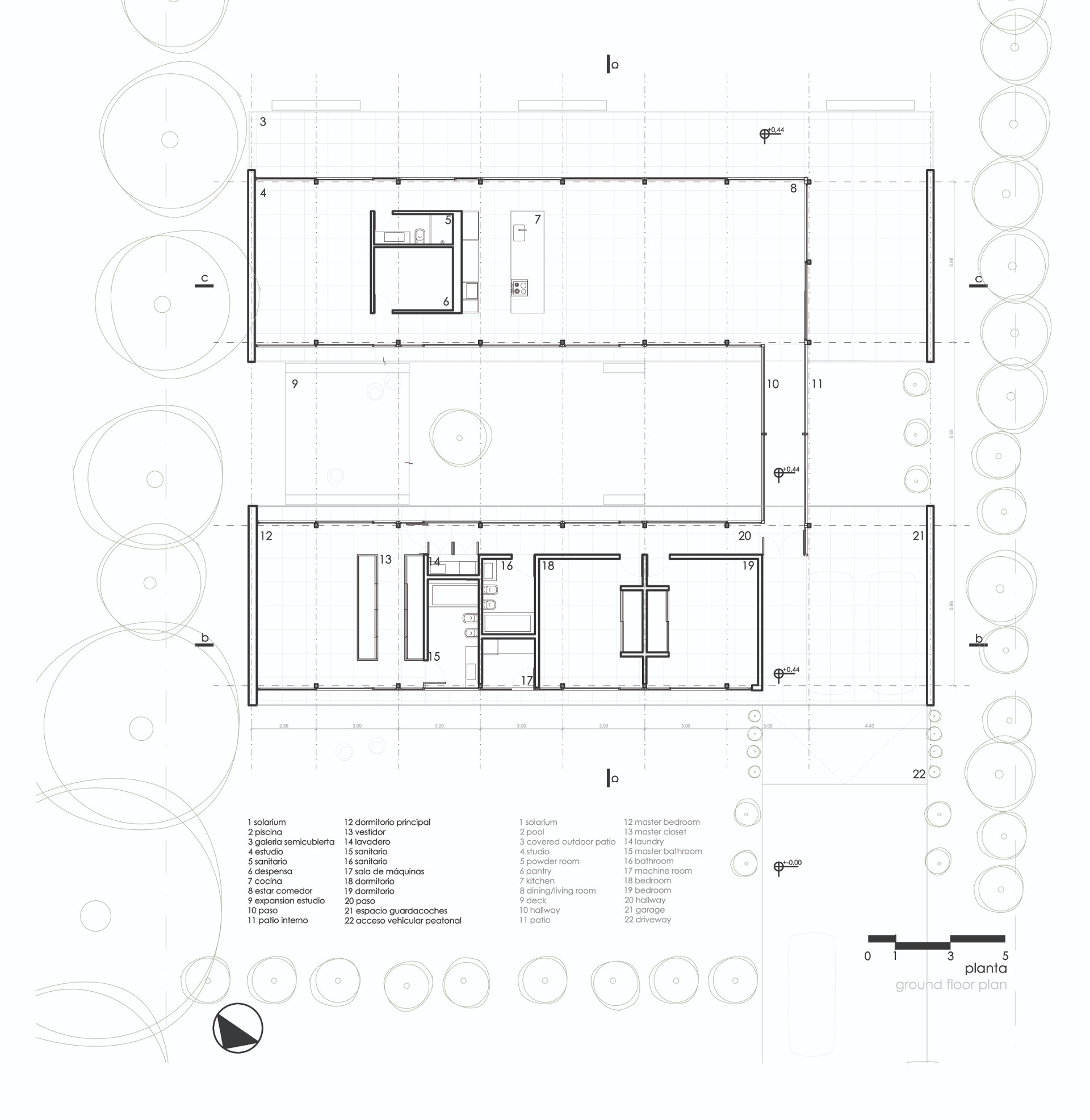
Desde un principio, la intención fue dialogar con el entorno de una forma silenciosa, con esa premisa, se optó por conformar el programa dividiendo los usos en volúmenes simples, pero a la vez permeables, logrando así un mayor desarrollo sobre el solar y recorridos que permiten diferentes puntos de vista del marco natural, además, al estar vinculados por un etéreo conector se da origen a un patio interno, que proporciona intimidad y cobijo entre el espacio de lo público y el ámbito privado.
La uniformidad de soluciones técnicas buscan síntesis del lenguaje, el apoyo ingrávido sobre el terreno pretende reducir el impacto sobre el mismo y por su parte la transparencia disuelve los límites entre interior y exterior, los sistemas de cerramiento a su vez, controlan el ingreso de luz y aportan intimidad a cada experiencia.
El silencio, puede a veces expresar la disminución o falta de ruido en un determinado entorno, la intención fue conseguir lugares de contemplación del paisaje, pacíficos, con pocas distorsiones y simplicidad formal.
Vivienda FR
Ubicación: Capilla del Señor, Provincia de Buenos Aires, Argentina.
Arquitecto: Cristian Hernán Estévez.
Colaboradores: Juan Manuel Bravo, Brenda Lucia Turroja, Daiana Mennella, Daniel Bartolachi, Mauricio Carvallo, Yanina Paola Estévez, Silvia Karina Estévez, María Celeste Vidigh, Rodolfo Marconi, Alejandro Esteban Benítez.
Dirección de Obra: Pablo Lukzsa, Lucas Savini.
Asesor estructural: Ing. Matías Deagustini.
Asesor en instalaciones sanitarias: Norberto Verosto, Andrés Flores.
Materialidad: Estructura de hormigón alivianada, muros portantes y columnas de perfiles laminados en caliente, cerramientos de aluminio.
Superficie del predio: 1990,00 m2.
Superficie construida: 465.00 m2.
Año de proyecto: 2017.
Año de construcción: 2017/2019.
Fotografías: Javier Agustín Rojas.
Año de construcción: 2022-23 en construcción.































