Tensión entre la ideología y las restricciones del paradigma:
Posiblemente de esta coyuntura surgen las respuestas al proceso creativo, la ideología deviene de la adhesión de aquello que uno considera correcto y no como algo estático, se redefine. Entiendo a esta última como un proceso en desarrollo, un organismo vivo en crecimiento, por contraparte, las restricciones del paradigma, se devienen en limites económicos, tecnológicos, funcionales y, principalmente, culturales con relación al uso del espacio. Este contexto conforma el marco compositivo, en este caso en particular, la vivienda pretende extenderse hacia los limites del solar; pero manteniendo el suspenso, enmarcando el paisaje. La sinceridad tecnológica, así como la síntesis material y formal, ambicionan silencio frente al entorno imponente y, las dimensiones y escala, armonía especular con la naturaleza.
Metamorfosis silenciosa:
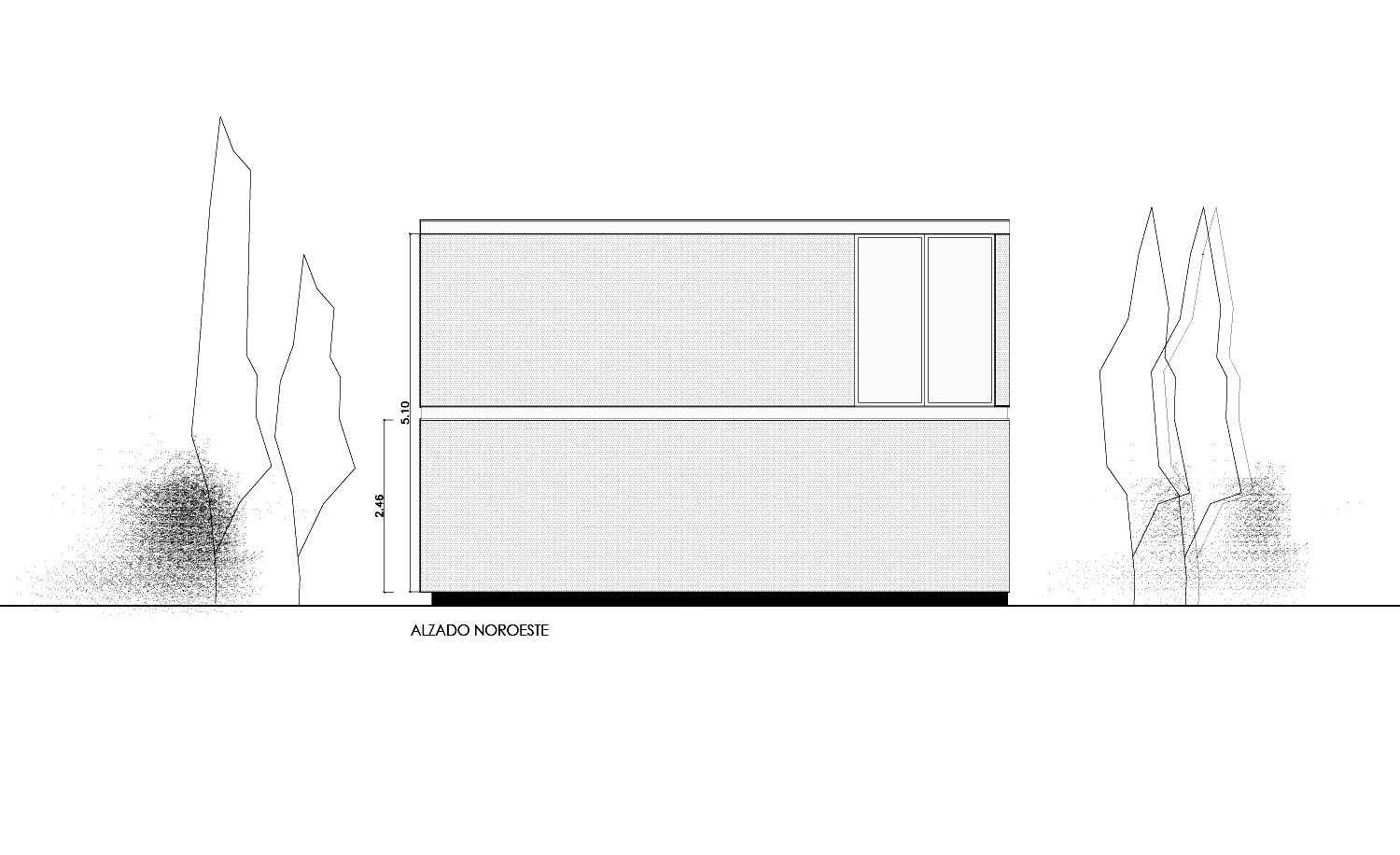
La forma se manifiesta espacialmente a través de un prisma que inscribe proporciones áureas, alcanzadas luego de transitar por el gratificante conflicto de pretender el hallazgo de las dimensiones óptimas para este espacio. Cada sistema de cuatro módulos corresponde a un rectángulo áureo y cada cara del prisma enmarca nuevamente esa proporción, de esa forma se estructura espacialmente la trama geométrica.
La incertidumbre acerca del modo de vinculación del contexto, a través de los subsistemas de cerramiento, es develada por el empleo controlado de elementos del tipo fijos portantes, por un lado, y de iluminación y ventilación, por otro. Éstos últimos son interlocutores estáticos y desplazables, dependiendo de lo que cada uno de los espacios de la unidad ofrezca como comunicación con el entorno.
El sistema de cerramiento exterior opera como elemento de control solar, además de ser un dispositivo de seguridad, éste provoca un cambio de forma del prisma al proyectarse hacia los confines del solar o confiere un rostro hermético al retraerse, aún así, por su trama permeable, ofrece una percepción desde el interior y esboza siluetas insinuando la conformación espacial desde el exterior.
Los sistemas de cerramientos en su total apertura permiten extender las visuales hacia los límites del predio y, su ubicación en planta, habilita el cruce de visuales atravesando el volumen, intentando desmaterializar los límites y amalgamar exterior e interior. Ésta situación se verifica en ambos niveles, en el plano elevado diferencialmente al paralelo a la línea de tierra, las perspectivas del entorno se proyectan hacia el infinito.
El prisma que conforma ésta unidad, al igual que un organismo, se abre y se cierra con sus diferentes elementos que silenciosos evocan una austera conexión con la naturaleza.
La poética del cripsis:
Se entiende al cripsis como una estrategia biológica de ocultación por imitación del entorno o alcanzada desdibujando la propia figura. Ésta transformación visual y perceptiva del espacio, no menos importante que la morfológica, es la generada entre otra cosas por el efecto de la luz natural y artificial. En horas diurnas, los sistemas de aventanamiento reflejan las especies vegetales en el exterior y las enmarcan desde el interior, así mismo, los reflejos de sombra al caer de las horas cambian la percepción de masa del prisma, desmaterializándolo. Al disminuir la luz durante la noche, los cerramientos fijos portantes de color gris se esconden dando lugar a los anillos estructurales y sistemas de cerramientos de color blanco, que esbozan sutilmente el perfil geométrico de la composición, la luz artificial se manifiesta hacia el exterior devolviendo ese reflejo absorbido gratuitamente durante el día.
De esta forma, la transformación visual, ofrece diferentes percepciones del espacio y su relación con el marco natural, el cual siempre se busco enaltecer.
Vivienda E
Nombre de la obra: Vivienda “E”.
Ubicación: General Rodríguez, Buenos Aires, Argentina.
Arquitecto: Cristian Hernán Estévez.
Colaboradores: Silvia Karina Estévez, Yanina Paola Estévez, Cristian Hernández, Mauricio Carvallo.
Asesor estructural: Ing. Teófilo Imach.
Asesor en instalaciones sanitarias: Norberto Verosto.
Construcción: cea (Cristian Estevez Arquitecto).
Materialidad: Estructura de muros portantes sobre doble encadenado perimetral, vigas circundantes de perfiles de acero IPN, entrepiso de viga de hormigón pretesado, cubierta de chapa de acero galvanizado y de vidrio templado.
Superficie del predio: 1200m2.
Superficie construida: 141m2.
Año de proyecto: 2009.
Año de construcción: 2010/2011.
Fotografías: Matías Andrés Blásquez, Cristian Hernán Estévez.



























